News Projects Profile Contact

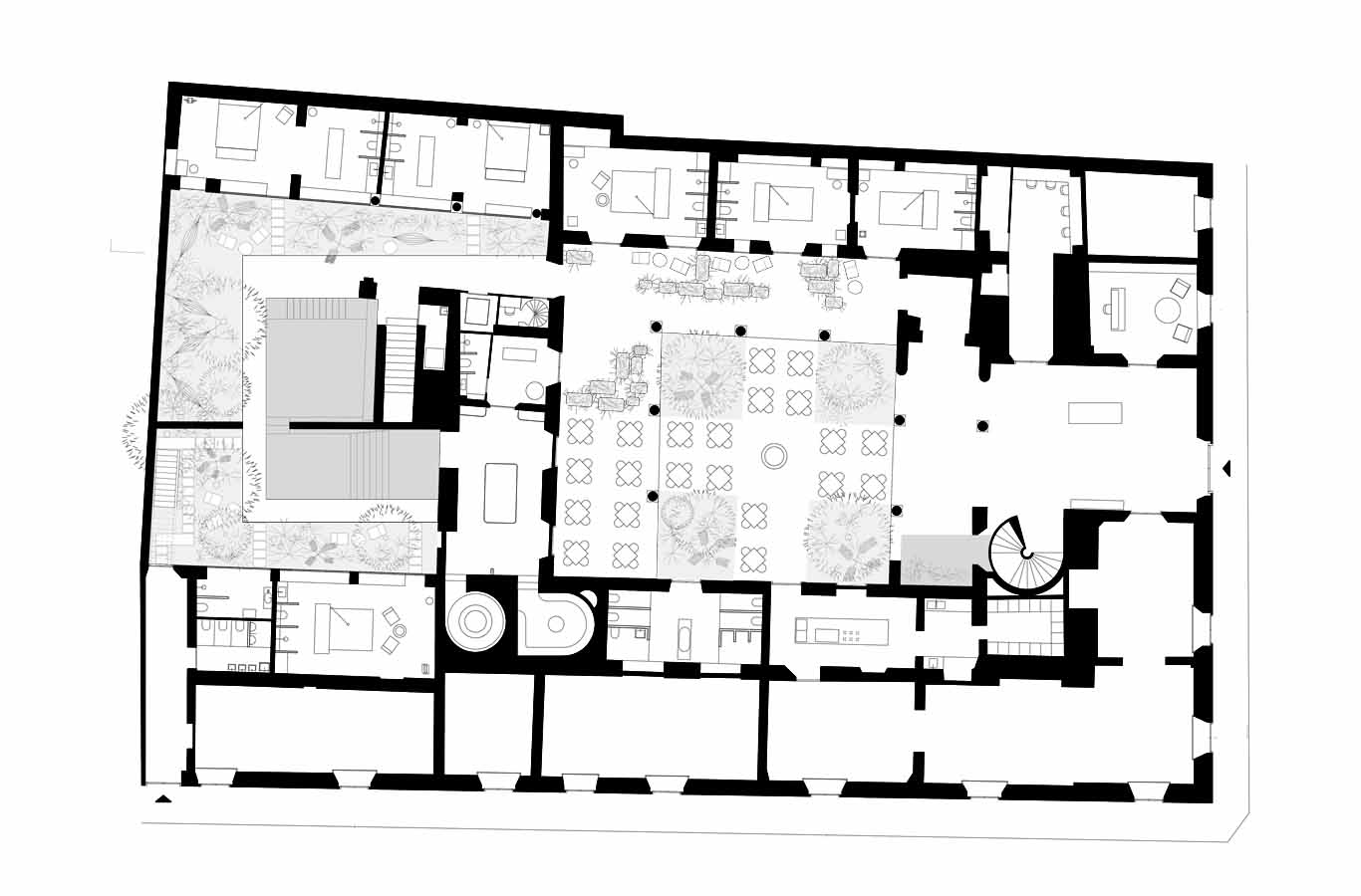
Hotel Sevilla

Hotel project for Grupo Habita • Mérida, Mexico • Completion 2025 • Hospitality Design Award 2026 finalist

A colonial villa with traces from the 16th century in the city center of Mérida, Yucatan was transformed into a grand hotel, whilst maintaining the charm of its as-found condition. Besides the architectural restoration of the listed building the design comprises various new interventions and additions in the form of contemporary elements made of concrete, and the design of all interiors. The project comprises twenty-one rooms, a spa, gardens, two restaurants, a bar and various retail offers at street level. Suites of varying sizes with tall ceilings and contemporary interiors are arranged around two large patios with lush sub-tropical greenery, a swimming pool, and shaded terraces. • Photography: Fernando Marroquín, Zaickz Moz